cena v RK
Na predajAdministratívna budova v priemyselnom parku na predaj, Sučany
Lokalita: Sučany
316 m²
Opis
Hľadáte reprezentatívne sídlo firmy alebo investičnú príležitosť v silnej priemyselnej lokalite?
Ponúkame na predaj modernú administratívnu budovu s vlastným areálom s celkovou plochou 1 178 m2 v priemyselnom parku Sučany, v srdci regiónu Martin.
Objekt je situovaný v etablovovanej zóne s nadštandardnou infraštruktúrou a susedstvom významných spoločností ako Volkswagen, ECCO, KraussMaffei či GGB Slovakia.
Výborná dostupnosť na D1 (cca 2 km) robí z tejto nehnuteľnosti ideálne miesto pre podnikanie aj investíciu.
Reprezentatívny priestor pre vaše podnikanie
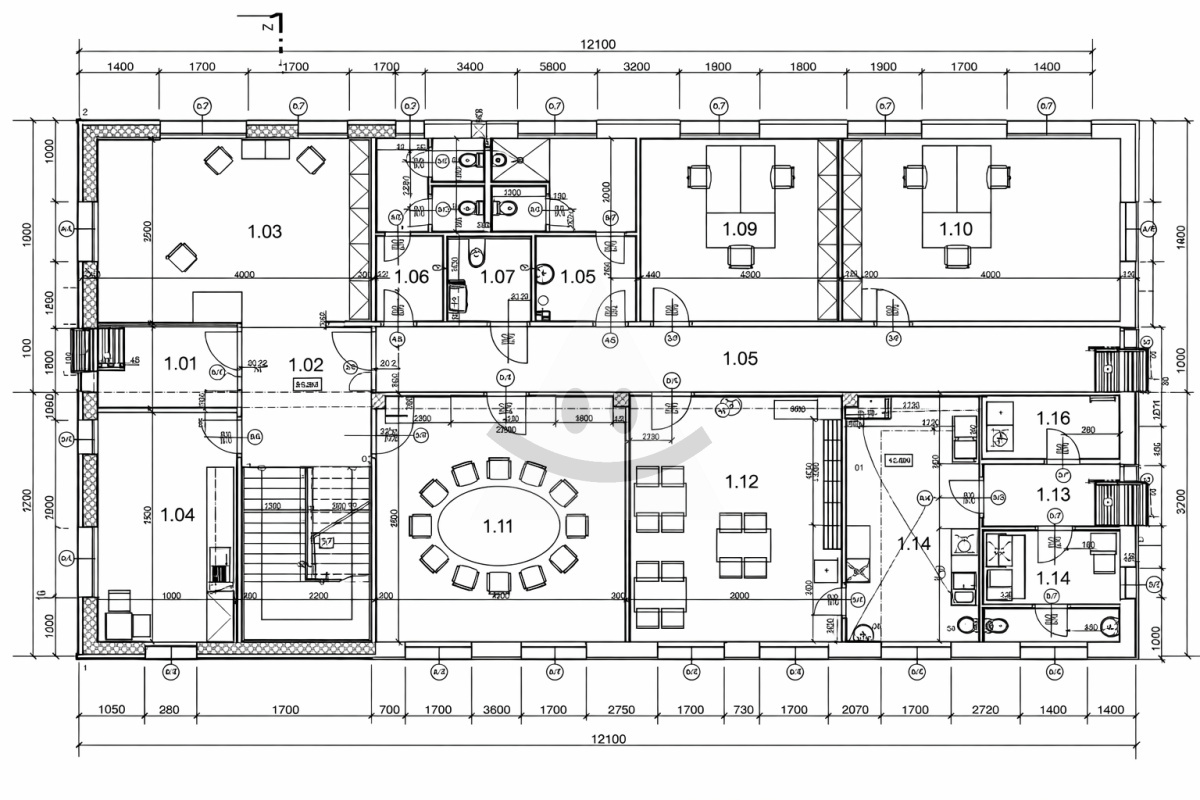
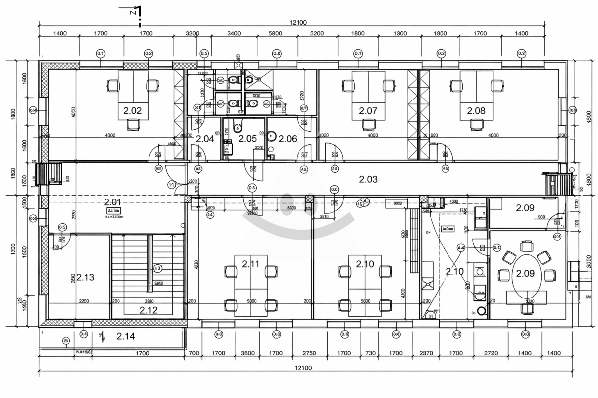
Budova má 316 m² zastavanej plochy na dvoch podlažiach a ponúka premyslenú dispozíciu:
- kancelárie, recepciu, zasadaciu miestnosť, archív, jedáleň, denné zázemie aj skladové priestory
- vďaka sadrokartónovým priečkam je možné interiér flexibilne prispôsobiť podľa potrieb novej firmy
- súčasné riešenie je ideálne pre administratívu, technické oddelenia, vývojové tímy, servisné centrum alebo ľahkú výrobu
⚡ Technológie a komfort
klimatizované kancelárie
plynové kúrenie a ohrev TÚV
optické internetové pripojenie
vlastná trafostanica
zabezpečovací systém
kompletné IS: voda, plyn, kanalizácia, elektrina
oplotený areál s parkovaním pre cca 10 áut
Lokalita, ktorá pracuje pre vás
Priemyselný park Sučany je dlhodobo vyhľadávaná lokalita s rýchlym napojením na hlavné
ťahy E50 a D1, železnicu aj letisko Žilina. Vaši zamestnanci aj partneri ocenia jednoduchý
prístup, dostatok parkovania a služby v okolí.
Prečo práve táto nehnuteľnosť?
✔ silná podnikateľská adresa
✔ hotová infraštruktúra bez ďalších investícií
✔ flexibilné využitie
✔ uzavretý areál
✔ možnosť rozšírenia pozemkov
✔ ideálne pre firmu aj investora
Inžinierske siete:
Nehnuteľnosť je napojená na kompletné a kapacitne dostatočné inžinierske siete, ktoré umožňujú okamžité a bezproblémové využívanie objektu bez ďalších investícií.
✔ Elektrina – objekt je napojený na verejnú sieť prostredníctvom vlastnej trafostanice a NN
rozvodov, čo zabezpečuje stabilný výkon aj pre technologicky náročnejšie prevádzky.
✔ Plyn – samostatná prípojka zemného plynu slúži na vykurovanie a ohrev teplej úžitkovej
vody cez vlastnú kotolňu, čo prináša efektívnu a ekonomickú prevádzku.
✔ Voda – budova je napojená na verejný vodovod a zároveň disponuje vlastnou studňou na
úžitkovú vodu, vhodnou napríklad na technické účely či údržbu areálu. Súčasťou je aj požiarny hydrant.
✔ Kanalizácia – k dispozícii je splašková kanalizácia s vlastnými rozvodmi a
zároveň dažďová kanalizácia vybavená lapačmi ropných látok a vsakovacími zariadeniami, čo
je veľkou výhodou pre prevádzku v priemyselnom prostredí.
✔ Telekomunikácie – v objekte je zavedená optická sieť Telekom s možnosťou
alternatívnych poskytovateľov (SWAN, GITY, GAYA). Vnútorné rozvody internetu a
telefónnych liniek sú vyvedené do jednotlivých kancelárií.
✔ Osvetlenie a exteriér – areál je vybavený vonkajším osvetlením, spevnenými asfaltovými
a dlažobnými plochami a kompletným oplotením s bránami.
✔ Odpadové hospodárstvo – napojenie na verejný systém odvozu odpadu, vyhradené
miesta pre kontajnery v areáli.
✨ Výhoda pre nového majiteľa
Vďaka vlastnej infraštruktúre, trafostanici a samostatným prípojkám je objekt vhodný aj
pre technicky náročnejšie prevádzky, výrobu, vývoj či logistiku, bez potreby dodatočných
stavebných alebo sieťových investícií.
Investičný potenciál a výnos z prenájmu
Nehnuteľnosť predstavuje atraktívnu investičnú príležitosť s možnosťou okamžitého generovania výnosu z prenájmu.
Vďaka svojej polohe v etablovanom priemyselnom parku, flexibilnej dispozícii a kompletnej infraštruktúre je objekt ideálny na dlhodobý aj krátkodobý prenájom kancelárskych, technických alebo kombinovaných priestorov.
Budova umožňuje prenajímať jednotlivé kancelárie, celé podlažia alebo celý objekt jednému nájomcovi.
Variabilita vnútorných priečok poskytuje možnosť vytvoriť menšie jednotky pre viacerých nájomcov, čím sa zvyšuje diverzifikácia príjmov a stabilita cash-flow.
Cena na vyžiadanie.
Radi vám poskytneme viac informácií a zabezpečíme osobnú obhliadku, maklér Simona Diabelková, t.č.: 0918/815 152
Poloha
Charakteristiky
Benefity
- Novostavba
- Najlepšia cena za m2
- Najlacnejšia v okolí
Dátum poslednej aktualizácie: 16.01.2026
Kontakt
Podobné nehnuteľnosti
3 560 m²
Obchodné priestory na predaj, Kollárova, Jahodníky, Martin
220 m²
Skladové priestory s kanceláriami na prenájom, širšie centrum















